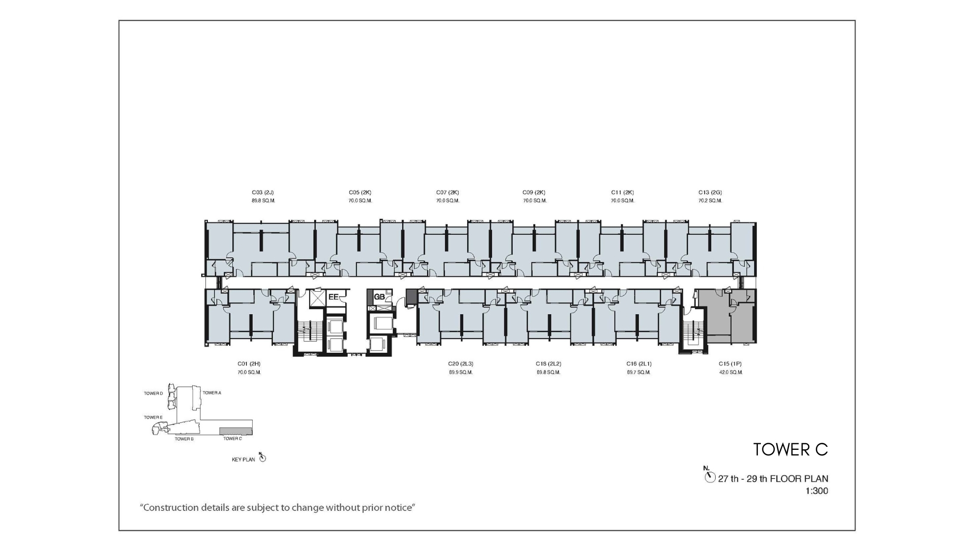
โครงการ วันเวลา ณ เจ้าพระยา (Wan Vayla Chao Phraya) เป็นคอนโดมิเนียมระดับซูเปอร์ลักซ์ชัวรีริมแม่น้ำเจ้าพระยา พัฒนาโดย บริษัท แลนด์ แอนด์ เฮ้าส์ จำกัด (มหาชน) ตั้งอยู่บนทำเลศักยภาพติดถนนสามเสน แขวงถนนนครไชยศรี เขตดุสิต กรุงเทพมหานคร โครงการถูกออกแบบภายใต้แนวคิด 'Live. Work. Play. Along the River' ที่เน้นการเชื่อมต่อชีวิตคนเมืองเข้ากับสุนทรียภาพของการอยู่อาศัยริมน้ำอย่างแท้จริง บนพื้นที่โครงการขนาดใหญ่กว่า 18 ไร่ พร้อมหน้ากว้างติดริมแม่น้ำเจ้าพระยาที่กว้างเป็นพิเศษ ทำให้ผู้อยู่อาศัยสามารถสัมผัสทัศนียภาพของโค้งน้ำและรัฐสภาแห่งใหม่ (สัปปายะสภาสถาน) ได้อย่างใกล้ชิด ตัวโครงการประกอบด้วยอาคารพักอาศัยความสูงตั้งแต่ 1 ชั้น ไปจนถึง 31 ชั้น จำนวน 5 อาคาร รวมยูนิตพักอาศัย 1414 ยูนิต มอบความรู้สึกเป็นส่วนตัวด้วยการออกแบบที่เน้นความโปร่งโล่งและเพิ่มพื้นที่สีเขียวขนาดใหญ่กว่า 4.8 ไร่ ภายในโครงการ รูปแบบห้องพักมีให้เลือกหลากหลาย ตั้งแต่ 1 ห้องนอน, 2 ห้องนอน, 3 ห้องนอน ไปจนถึงห้องระดับ Penthouse ที่มาพร้อมกับความสูงเพดานเป็นพิเศษและการจัดวางฟังก์ชันที่ตอบโจทย์การอยู่อาศัยระดับพรีเมียม สิ่งอำนวยความสะดวกส่วนกลางภายในโครงการจัดเตรียมไว้อย่างเหนือระดับเพื่อรองรับไลฟ์สไตล์การพักผ่อน ประกอบด้วยสระว่ายน้ำระบบเกลือ Infinity Edge Pool ที่ทอดตัวขนานกับแม่น้ำเจ้าพระยา ห้องออกกำลังกาย (ฟิตเนส) ที่พรั่งพร้อมด้วยอุปกรณ์มาตรฐานระดับโลก พื้นที่ Co-Working Space, Sky Lounge สำหรับชมพระอาทิตย์ตก และพื้นที่สวนส่วนกลางขนาดใหญ่ที่ออกแบบภูมิทัศน์อย่างปราณีต นอกจากนี้ยังมีท่าเรือส่วนตัวเพื่ออำนวยความสะดวกในการเดินทางทางน้ำ ด้านระบบรักษาความปลอดภัย โครงการมีมาตรการดูแลอย่างเข้มงวดตลอด 24 ชั่วโมง ด้วยระบบการเข้า-ออกลิฟต์แบบล็อกชั้น Key Card Access และระบบจดจำใบหน้า พร้อมการติดตั้งกล้องวงจรปิด (CCTV) ทั่วบริเวณโครงการ สภาพแวดล้อมโดยรอบแวดล้อมด้วยสถานที่สำคัญและแหล่งอำนวยความสะดวก ทั้งอาคารรัฐสภา, ศูนย์กลางคมนาคมบางซื่อ (Krung Thep Aphiwat Central Terminal), โรงเรียนราชินีบน, และโรงพยาบาลวิชัยยุทธ ทั้งยังเดินทางสะดวกด้วยรถไฟฟ้าสายสีน้ำเงินและทางด่วนศรีรัช ทำให้โครงการวันเวลา ณ เจ้าพระยา เป็นที่อยู่อาศัยที่ทรงคุณค่าและเป็นไอคอนิกแห่งใหม่ริมฝั่งแม่น้ำเจ้าพระยา































































































