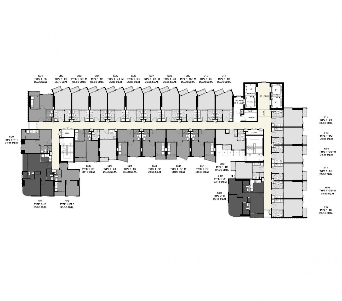
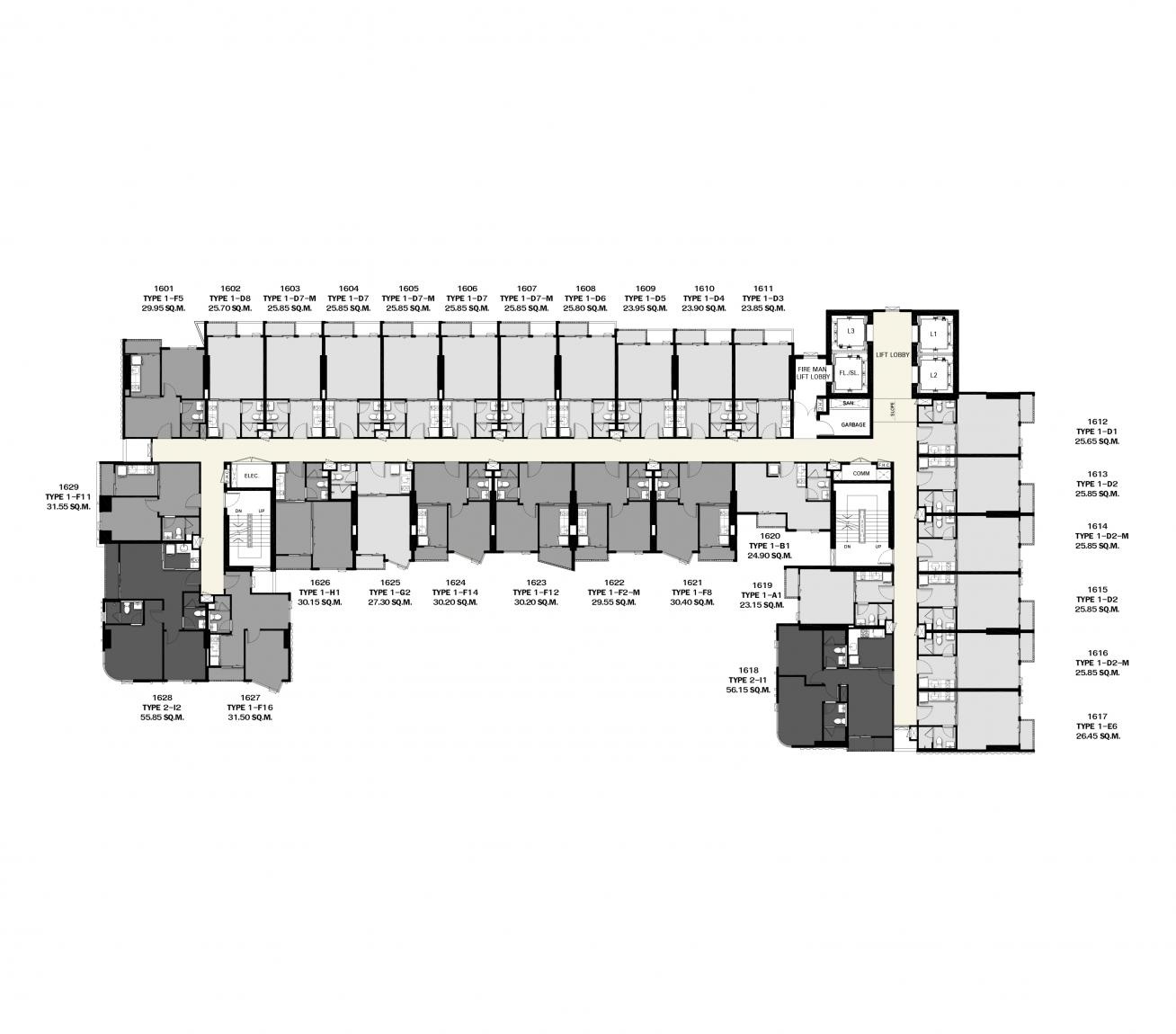
โครงการ เดอะ ทรี พัฒนาการ-เอกมัย (The Tree Pattanakarn-Ekkamai) เป็นโครงการคอนโดมิเนียม High Rise สูง 29 ชั้น จำนวน 1 อาคาร พัฒนาโดย บริษัท พฤกษา เรียลเอสเตท จำกัด (มหาชน) ตั้งอยู่บนทำเลศักยภาพ ติดถนนใหญ่พัฒนาการ แขวงสวนหลวง เขตสวนหลวง กรุงเทพมหานคร โครงการได้รับการออกแบบภายใต้แรงบันดาลใจจากธรรมชาติและ 'วงปีของต้นไม้' ผสานเข้ากับเส้นสายสถาปัตยกรรมที่โดดเด่นเป็นเอกลักษณ์ ทำเลที่ตั้งมีความโดดเด่นด้านการเดินทางอย่างมาก สามารถเชื่อมต่อถนนพัฒนาการ ถนนเพชรบุรี และเข้าสู่ใจกลางเมืองย่านเอกมัย-ทองหล่อได้อย่างรวดเร็วเพียง 5 นาที ใกล้รถไฟฟ้าแอร์พอร์ตลิงก์ (ARL สถานีรามคำแหง) เพียง 300 เมตร และใกล้จุดขึ้นลงทางด่วนรามอินทรา-ฉลองรัชเพียง 250 เมตร รวมถึงใกล้รถไฟฟ้าสายสีส้มในอนาคต ทำให้การเดินทางเข้า-ออกเมืองเป็นไปอย่างสะดวกสบาย พื้นที่โครงการได้รับการพัฒนาบนเนื้อที่กว่า 2 ไร่ (2-2-73.4 ไร่) มอบความเป็นส่วนตัวด้วยจำนวนยูนิตพักอาศัย 697 ยูนิต และยูนิตร้านค้า 2 ยูนิต (รวม 699 ยูนิต) รูปแบบห้องพักมีให้เลือกทั้ง 1 Bedroom และ 2 Bedrooms พื้นที่ใช้สอยตั้งแต่ 23.15 - 56.55 ตารางเมตร ทุกยูนิตได้รับการออกแบบให้กว้างขวาง โปร่งสบายด้วยความสูงฝ้าเพดานถึง 2.8 เมตร พร้อมฟังก์ชันการใช้งานที่ลงตัวและเลือกใช้วัสดุระดับพรีเมียม ตอบโจทย์ไลฟ์สไตล์คนเมืองที่ต้องการความสมบูรณ์แบบในทุกตารางนิ้ว พื้นที่ส่วนกลางและสิ่งอำนวยความสะดวกจัดเต็มถึง 3 ชั้น ตอบรับทุกกิจกรรมและไลฟ์สไตล์เหนือระดับ นำโดยไฮไลต์บนชั้น Rooftop (ชั้น 29) ที่เปรียบเสมือนยอดต้นไม้ มาพร้อม 'Bird Nest Sculpture' ห้องฟิตเนสรูปทรงรังนกขนาดใหญ่, สระว่ายน้ำความยาว 24.5 เมตร ที่พื้นและผนังเป็นกระจกใสยื่นออกจากขอบสระ สามารถว่ายวนและชมวิวสกายไลน์ของเมืองได้แบบ 360 องศา, Aqua Theatre ภายในสระ Jacuzzi, Sky Lounge, ห้องเกม, ห้องสันทนาการ และ Co-working Space นอกจากนี้ยังมีพื้นที่ชั้น 5 และชั้นล่างที่ประกอบด้วยสวนพักผ่อน ลานโยคะ ลานปั่นจักรยานกลางแจ้ง และหน้าผาจำลอง ด้านระบบรักษาความปลอดภัย โครงการมีมาตรการดูแลอย่างรัดกุม ติดตั้งกล้องวงจรปิด (CCTV) ทั่วโครงการ พร้อมเจ้าหน้าที่รักษาความปลอดภัยตลอด 24 ชั่วโมง ทำเลที่ตั้งโครงการแวดล้อมด้วยแหล่งอำนวยความสะดวก ศูนย์การค้า และสถานที่สำคัญอย่างครบครัน อาทิ เดอะมอลล์ รามคำแหง, ฟู้ดแลนด์ รามคำแหง, ดองกิ มอลล์ ทองหล่อ, เจ อเวนิว ทองหล่อ, มหาวิทยาลัยรามคำแหง, โรงพยาบาลกรุงเทพ และโรงพยาบาลสมิติเวช สุขุมวิท ทำให้โครงการ เดอะ ทรี พัฒนาการ-เอกมัย เป็นสุดยอดทางเลือกที่โดดเด่นและสมบูรณ์แบบสำหรับการใช้ชีวิตคนเมืองที่เชื่อมต่อธรรมชาติ ความหรูหรา และความสะดวกสบายได้อย่างลงตัว








































