
"โครงการ นิวยอร์ก รังสิต คลอง 4 (NEW YORK Rangsit Klong 4) ทาวน์โฮมบนทำเลที่ดีที่สุดของ รังสิต-คลอง4 เป็นหนึ่งเดียวกับสังคมเมืองด้วยทำเลทำเลที่ดีที่สุด สไตล์ Art Deco ศิลปะที่เกิดขึ้นก่อนศตวรรษที่ 20 การจัดวางพื้นที่ใช้สอยได้อย่างเหมาะสม และคำนึงถึงการใช้พื้นที่แต่ละส่วน เน้นให้เกิดประโยชน์สูงสุด"
แบบบ้าน : Brooklyn



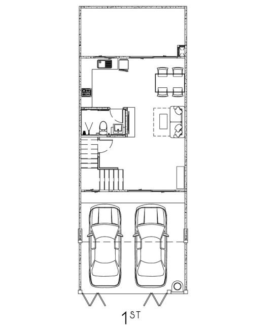
ชั้น 1 หน้าบ้าน กว้าง 5.7 เมตร ลงเสาเข็มเท่าตัวบ้าน รองรับการใช้งานจริง แบ่งโซนรับแขกได้อย่างลงตัว มุมครัวขนาดใหญ่ เชื่อมต่อกับพื้นที่ทานอาหาร พื้นที่หลังบ้านกว้าง 2 เมตร พร้อมลงเสาเข็มเท่าตัวบ้านพร้อมใช้งาน
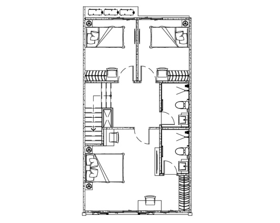
ชั้น 2 โถงบันไดกว้าง ให้ความรู้สึกโปร่ง Master Bedroom ขนาดใหญ่ พร้อมห้องน้ำในตัว ห้องนอนทั้ง 3 ห้องกว้าง รองรับการใช้งานจริง
แบบบ้าน : Manhattan



ชั้น 1 หน้าบ้าน กว้าง 5.7 เมตร ลงเสาเข็มเท่าตัวบ้าน รองรับการใช้งานจริง แบ่งโซนรับแขกได้อย่างลงตัว มุมครัวขนาดใหญ่ เชื่อมต่อกับพื้นที่ทานอาหาร พื้นที่หลังบ้านกว้าง 2 เมตร พร้อมลงเสาเข็มเท่าตัวบ้านพร้อมใช้งาน
ชั้น 2 โถงบันไดกว้าง ให้ความรู้สึกโปร่ง Master Bedroom ขนาดใหญ่ ถึง 2 ห้อง ห้องนอนทั้ง 3 ห้องกว้าง รองรับการใช้งานจริง
ทำเลที่ตั้ง
ถนนพระองค์เจ้าสาย ตําบลบึงยี่โถ อําเภอธัญบุรี จังหวัดปทุมธานี 12130

สิ่งอำนวยความสะดวกรอบโครงการ
สถานศึกษารร.นานาชาติสยาม รร.บีคอนเฮาส์แย้มสอาด รังสิตรร.โชคชัยรังสิต รร.สวนกุหลาบวิทยาลัย รังสิต
การเดินทาง
ทางด่วนดอนเมืองโทลล์เวย์ถนนกาญจนาภิเษก (วงแหวนรอบนอกฝั่งตะวันออก)รถไฟฟ้าสายสีเขียว สถานีคลอง 4
บทความที่คุณอาจสนใจ
• 15 น้ำพุแมว ยี่ห้อไหนดี ที่โดนใจเจ้านายและตอบโจทย์ไลฟ์สไตล์เหล่าทาส
• 10 ไอเดีย บ้านแมวกลางแจ้งระบบปิดแบบ Catio
• เกษตร ย่านใจกลางเมือง ตอบโจทย์การอยู่อาศัย
• สีสันแห่งย่าน “ห้าแยกลาดพร้าว” ไลฟ์สไตล์ชีวิตไม่หยุดนิ่ง “เช้า-ยัน-ดึก”