
"โครงการ โมดิ วิลล่า บางนา (MODI VILLA Bangna) พลิกมิติใหม่ของการอยู่อาศัย สัมผัสอิสระแห่งการใช้ชีวิตทันสมัย ให้คุณใช้ชีวิตสมาร์ทเหนือระดับได้ทุกวัน ท่ามกลางบรรยากาศพักผ่อนที่แตกต่าง โดดเด่นด้วยดีไซน์ และฟังก์ชันที่เหนือกว่า ลงตัวสำหรับทุกไลฟ์สไตล์"
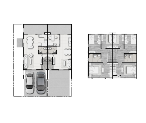
แบบบ้าน : Wilton


พื้นที่ใช้สอย 120 ตร.ม. 3 ห้องนอน 2 ห้องน้ำ 2 ที่จอดรถ 1 ห้องนั่งเล่น 1 ห้องทานข้าว 1 ห้องอเนกประสงค์
– สมาร์ททาวน์โฮม ซีรีส์ใหม่ล่าสุด NEW ENGLISH COTTAGE– Multi-Purpose Area ปรับเปลี่ยนเป็นห้องนอน หรือห้องครัวได้ตามความต้องการ– Extra Living Space พื้นที่ซักล้างลงเสาเข็มยาวเท่าตัวบ้าน เพิ่มฟังก์ชันการใช้งานได้ตามไลฟ์สไตล์– Oversized Window หน้าต่างบานใหญ่ พร้อมกระจกเข้ามุม เปิดรับวิวธรรมชาติ โปร่ง โล่งได้มากกว่า– Master Bedroom ห้องนอนใหญ่ เติมเต็มช่วงเวลาพักผ่อน รองรับพื้นที่ Walk-In Closet– Smart Home & Smart Airflow นวัตกรรมใหม่ ใช้ชีวิตสะดวกสบาย และปลอดภัยกว่าที่เคยด้วยปลายนิ้ว
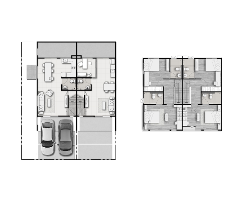
แบบบ้าน : Walton


พื้นที่ใช้สอย 120 ตร.ม. 2 ห้องนอน 3 ห้องน้ำ 2 ที่จอดรถ 1 ห้องนั่งเล่น 1 ห้องทานข้าว 1 ห้องอเนกประสงค์
– สมาร์ททาวน์โฮม ซีรีส์ใหม่ล่าสุด NEW ENGLISH COTTAGE– Multi-Purpose Area ปรับเปลี่ยนเป็นห้องนอน หรือห้องครัวได้ตามความต้องการ– Extra Living Space พื้นที่ซักล้างลงเสาเข็มยาวเท่าตัวบ้าน เพิ่มฟังก์ชันการใช้งานได้ตามไลฟ์สไตล์– Oversized Window หน้าต่างบานใหญ่ พร้อมกระจกเข้ามุม เปิดรับวิวธรรมชาติ โปร่ง โล่งได้มากกว่า– Double Master Bedroom ห้องนอนขนาดใหญ่ พร้อมห้องน้ำในตัวทุกห้อง เพิ่มความเป็นส่วนตัว– Smart Home & Smart Airflow นวัตกรรมใหม่ ใช้ชีวิตสะดวกสบาย และปลอดภัยกว่าที่เคยด้วยปลายนิ้ว
แบบบ้าน : Monica (B)


พื้นที่ใช้สอย 106 ตร.ม. 2 ห้องนอน 3 ห้องน้ำ 1 ห้องนั่งเล่น 1 ที่จอดรถ 1 ห้องทานข้าว 1 ห้องอเนกประสงค์
ฟังก์ชันดีไซน์ใหม่ ตอบรับทุกรูปแบบของการใช้ชีวิต เติมเต็มความเป็นส่วนตัวได้มากกว่า โดดเด่นด้วย Double Master Bedroom พร้อมห้องน้ำในตัว Multi-Purpose Area บริเวณชั้นล่าง สามารถปรับเปลี่ยนให้เป็นห้องครัว หรือห้องนั่งเล่นได้ตามความต้องการ
ภาพโครงการ





ทำเลที่ตั้ง
ถนนบางนา-ตราด ต.บางเสาธง อ.บางเสาธง จ.สมุทรปราการ
สิ่งอำนวยความสะดวกรอบโครงการ
สถานศึกษามหาวิทยาลัยอัสสัมชัญ (เอแบค)โรงเรียนนวมินทราชินูทิศฯมหาวิทยาลัยหัวเฉียวฯ
การเดินทาง
สนามบินสุวรรณภูมิทางด่วนบางนา-ตราดถนนวงแหวนรอบนอกมอเตอร์เวย์
บทความที่คุณอาจสนใจ
• 15 น้ำพุแมว ยี่ห้อไหนดี ที่โดนใจเจ้านายและตอบโจทย์ไลฟ์สไตล์เหล่าทาส
• 10 ไอเดีย บ้านแมวกลางแจ้งระบบปิดแบบ Catio
• เกษตร ย่านใจกลางเมือง ตอบโจทย์การอยู่อาศัย
• สีสันแห่งย่าน “ห้าแยกลาดพร้าว” ไลฟ์สไตล์ชีวิตไม่หยุดนิ่ง “เช้า-ยัน-ดึก”