
"โครงการ ลุมพินี วิลล์ จรัญ-ไฟฉาย (LUMPINI VILLE Charan-Fai Chai) มาสัมผัสวิถีความพอดีที่มากกว่า ด้วยการออกแบบทุกพื้นที่ให้เรียบง่าย ทั้งภายในและบริเวณรอบโครงการ เติมเต็มการใช้ชีวิตได้มากกว่า ด้วยการออกแบบพื้นที่อย่างลงตัวทุกตารางเมตร ให้ความเป็นส่วนตัวภายใน หรืออยากเปิดรับธรรมชาติธรรมชาติ ก็สามารถเปิดรับวิวสวนนอกอาคารให้คุณชาร์จความสดชื่นได้ทุกวัน"
ผังโครงการ

อาคารชุดพักอาศัยทาวเวอร์ A



ชั้นล่าง : โถงทางเข้า, ห้องอเนกประสงค์, กล่องรับจดหมาย, ร้านค้า, สระว่ายน้ำ, ลานพักผ่อน, ห้องน้ำชาย-หญิง-คนพิการ, ห้องเครื่อง และที่จอดรถยนต์ชั้น 2 – 20 : ห้องชุดพักอาศัยชั้น 21 : จุดชมวิวและลานพักผ่อน
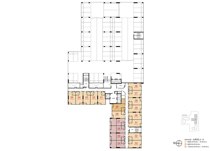
อาคารชุดพักอาศัยทาวเวอร์ B





ชั้นล่าง : โถงทางเข้า, สำนักงานนิติบุคคล, กล่องรับจดหมาย, ห้องอเนกประสงค์, ห้องเฮ้าส์เวิร์ค ,ลานพักผ่อน, ห้องน้ำชาย-หญิง-คนพิการ, ห้องเครื่อง, ที่จอดรถจักรยานยนต์และที่จอดรถยนต์ชั้น 2 : ห้อง รปภ., ห้องแม่บ้าน และที่จอดรถยนต์ชั้น 3 – 8 : ที่จอดรถยนต์ และห้องชุดพักอาศัยชั้น 9 : ลานพักผ่อน และห้องชุดพักอาศัยชั้น 10 – 16 : ห้องชุดพักอาศัยชั้น 17 : สวนผักรวมใจ และห้องชุดพักอาศัยชั้น 18 – 22 : ห้องชุดพักอาศัยชั้น 23 : ฟิตเนสโซน , จุดชมวิว และลานพักผ่อน
อาคารชุดพักอาศัยทาวเวอร์ C



ชั้นล่าง : โถงทางเข้า, ห้องบริการจัดการพัสดุ, กล่องรับจดหมาย, ห้องอเนกประสงค์, ห้องเฮ้าส์เวิร์ค,ลานพักผ่อน, สนามเด็กเล่น,ห้องน้ำชาย-หญิง-คนพิการ, ห้อง รปภ., ห้องแม่บ้าน ,ห้องเครื่อง ที่จอดรถจักรยานยนต์และที่จอดรถยนต์ชั้น 2 – 4 : ที่จอดรถยนต์ชั้น 5 : ลานพักผ่อน และห้องชุดพักอาศัยชั้น 6 – 21 : ห้องชุดพักอาศัยชั้น 22 : ฟิตเนสโซน ,จุดชมวิว และลานพักผ่อนที่จอดรถ : ประมาณ 546 คัน
แบบห้อง : Studio





















แบบห้อง : 1 Bedroom
















































แบบห้อง : 2 Bedroom

ภาพโครงการ









ทำเลที่ตั้ง
ซอยจรัญสนิทวงศ์ 22 ถนนจรัญสนิทวงศ์ แขวงบ้านช่างหล่อ บางกอกน้อย กทม.
บทความที่คุณอาจสนใจ
• 15 น้ำพุแมว ยี่ห้อไหนดี ที่โดนใจเจ้านายและตอบโจทย์ไลฟ์สไตล์เหล่าทาส
• 10 ไอเดีย บ้านแมวกลางแจ้งระบบปิดแบบ Catio
• เกษตร ย่านใจกลางเมือง ตอบโจทย์การอยู่อาศัย
• สีสันแห่งย่าน “ห้าแยกลาดพร้าว” ไลฟ์สไตล์ชีวิตไม่หยุดนิ่ง “เช้า-ยัน-ดึก”