กำลังโหลด...
กำลังโหลด...



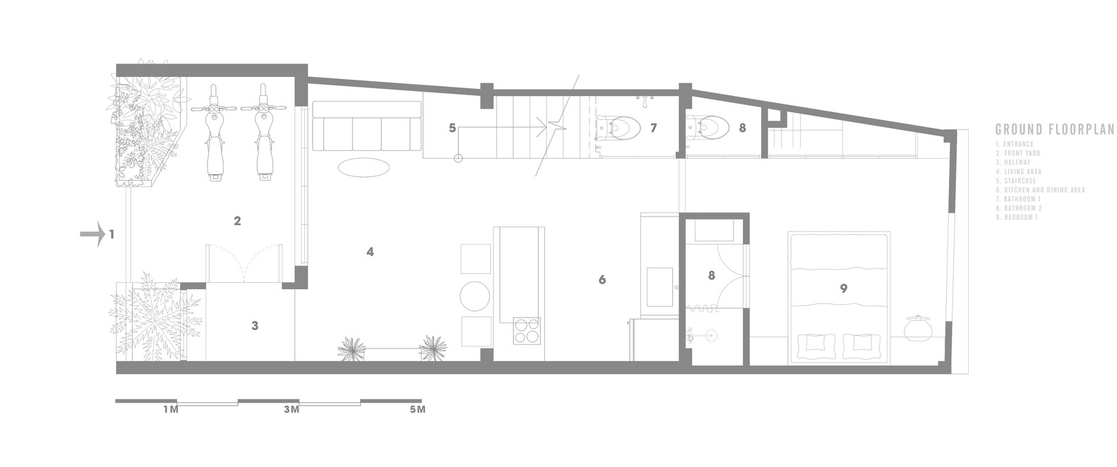
ค้นพบนิยามใหม่ของการอยู่อาศัยที่เหนือกว่า ณ GRANDE PLENO รามอินทรา - บางชันสเตชั่น โครงการบ้านแฝดและทาวน์โฮมระดับพรีเมียม บนทำเลศักยภาพโซนรามอินทรา ที่เชื่อมต่อทุกการเดินทางอย่างสมบูรณ์แบบ เพียง 2 นาทีถึงรถไฟฟ้าสายสีชมพู สถานีบางชัน และใกล้ทางด่วนวงแหวนกาญจนาภิเษก ให้คุณเข้าสู่ใจกลางเมืองได้อย่างรวดเร็ว โครงการนี้จึงตอบโจทย์ไลฟ์สไตล์คนเมืองที่มองหาบ้านหรูในย่านที่ครบครัน สะดวกสบายทุกการใช้ชีวิต รายล้อมด้วยแหล่งอำนวยความสะดวกชั้นนำมากมาย ไม่ว่าจะเป็นศูนย์การค้าแฟชั่นไอส์แลนด์, เดอะ พรอมานาด, โรงพยาบาลนพรัตนราชธานี, โรงพยาบาลสินแพทย์ และสถานศึกษาชั้นนำหลายแห่ง GRANDE PLENO รามอินทรา - บางชันสเตชั่น ได้รับการออกแบบภายใต้แนวคิดที่สะท้อนความหรูหราและใส่ใจในทุกรายละเอียด พื้นที่ใช้สอยกว้างขวาง ฟังก์ชันครบครัน รองรับการใช้งานของทุกคนในครอบครัวได้อย่างลงตัว เป็นเจ้าของบ้านใกล้รถไฟฟ้าในทำเลทองรามอินทรา-บางชัน ที่จะทวีมูลค่าในอนาคต เติมเต็มทุกวันพักผ่อนด้วยพื้นที่ส่วนกลางขนาดใหญ่และสิ่งอำนวยความสะดวกครบวงจร อาทิ คลับเฮาส์ดีไซน์หรู, สระว่ายน้ำระบบเกลือ, ฟิตเนสพร้อมอุปกรณ์ทันสมัย, Co-Working Space สำหรับเปลี่ยนบรรยากาศการทำงาน และสวนสาธารณะร่มรื่น พร้อมระบบรักษาความปลอดภัยอัจฉริยะจาก KATSAN ตลอด 24 ชั่วโมง ให้คุณและครอบครัวได้ใช้ชีวิตอย่างมีระดับ ปลอดภัย และเป็นส่วนตัวที่สุด ที่ GRANDE PLENO รามอินทรา - บางชันสเตชั่น


โครงการ อารียา โคโม่ บางบัวทอง - 340 (Areeya Como Bang Bua Thong - 340) เป็นโครงการบ้าน 2 ชั้น ดีไซน์ทันสมัยสไตล์ Modern จาก อารียา พรอพเพอร์ตี้ (Areeya Property) ตั้งอยู่บนทำเลศักยภาพติดถนนใหญ่บางบัวทอง-สุพรรณบุรี (ทางหลวง 340) ภายใต้แนวคิด 'ดีไซน์ชีวิตสุขนิยม' ที่ออกแบบมาเพื่อตอบโจทย์ไลฟ์สไตล์ของครอบครัวยุคใหม่ ทั้ง Gen Y และ Gen Z ที่ต้องการพื้นที่ความสุขกว้างขวาง เป็นสัดส่วน ในราคาที่เข้าถึงได้ง่าย พร้อมการเดินทางที่สะดวกสบายใกล้รถไฟฟ้าสายสีม่วง (สถานีคลองบางไผ่) ตัวโครงการชูจุดเด่นด้านการออกแบบบ้านที่เน้นพื้นที่ใช้สอยคุ้มค่า (Smart Functional Design) บนพื้นที่ใช้สอย 141 ตร.ม. (เริ่มต้น 35 ตร.ว.) รองรับ 3 ห้องนอน 2 ห้องน้ำ 2 ที่จอดรถ พร้อมไฮไลต์ 1 ห้องอเนกประสงค์ชั้นล่างที่สามารถปรับเปลี่ยนเป็นห้องทำงานหรือห้องผู้สูงอายุได้อย่างอิสระ มีพื้นที่ส่วนครัวไทยและ Pantry ขนาดใหญ่สำหรับการเตรียมอาหาร คัดสรรวัสดุคุณภาพที่ตอบโจทย์การใช้งานจริง เพื่อมอบประสบการณ์การอยู่อาศัยที่โปร่งโล่ง สบายตา และเป็นเซฟโซนแห่งความสุขสำหรับทุกคนในครอบครัว สิ่งอำนวยความสะดวกภายในโครงการ (Facilities) จัดเตรียมไว้อย่างครบครันเพื่อรองรับการพักผ่อนในทุกวัน อาทิ คลับเฮาส์ส่วนกลาง, สระว่ายน้ำ, ฟิตเนสพร้อมอุปกรณ์ครบครัน, และสวนสวยรอบโครงการที่ให้คุณใช้ชีวิตอยู่ท่ามกลางความร่มรื่นของธรรมชาติ (Green Space) พร้อมระบบรักษาความปลอดภัยขั้นสูงสุด และกล้องวงจรปิด CCTV ตลอด 24 ชั่วโมง เพื่อส่งมอบความอุ่นใจและคุณภาพชีวิตที่ดีที่สุดให้กับสมาชิกทุกคน ทำเลที่ตั้งโครงการมีความโดดเด่นและเดินทางสะดวกสบาย (Prime Location) ด้วยทำเลที่ติดถนนใหญ่บางบัวทอง-340 สามารถเชื่อมต่อถนนกาญจนาภิเษก (วงแหวนรอบนอกตะวันตก) และถนนสะพานนนทบุรี-บางบัวทอง (345) ได้อย่างรวดเร็ว แวดล้อมด้วยแหล่งไลฟ์สไตล์ ศูนย์การค้า และสิ่งอำนวยความสะดวกครบครัน อาทิ เซ็นทรัล เวสต์เกต (Central Westgate), อิเกีย บางใหญ่, บิ๊กซี บางใหญ่ และโรงพยาบาลเกษมราษฎร์ รัตนาธิเบศร์ ทำให้ อารียา โคโม่ บางบัวทอง - 340 เป็นที่สุดของโครงการที่ตอบโจทย์ทั้งการเริ่มต้นครอบครัวที่อบอุ่นและการใช้ชีวิตบนทำเลศักยภาพของโซนบางบัวทอง-นนทบุรี


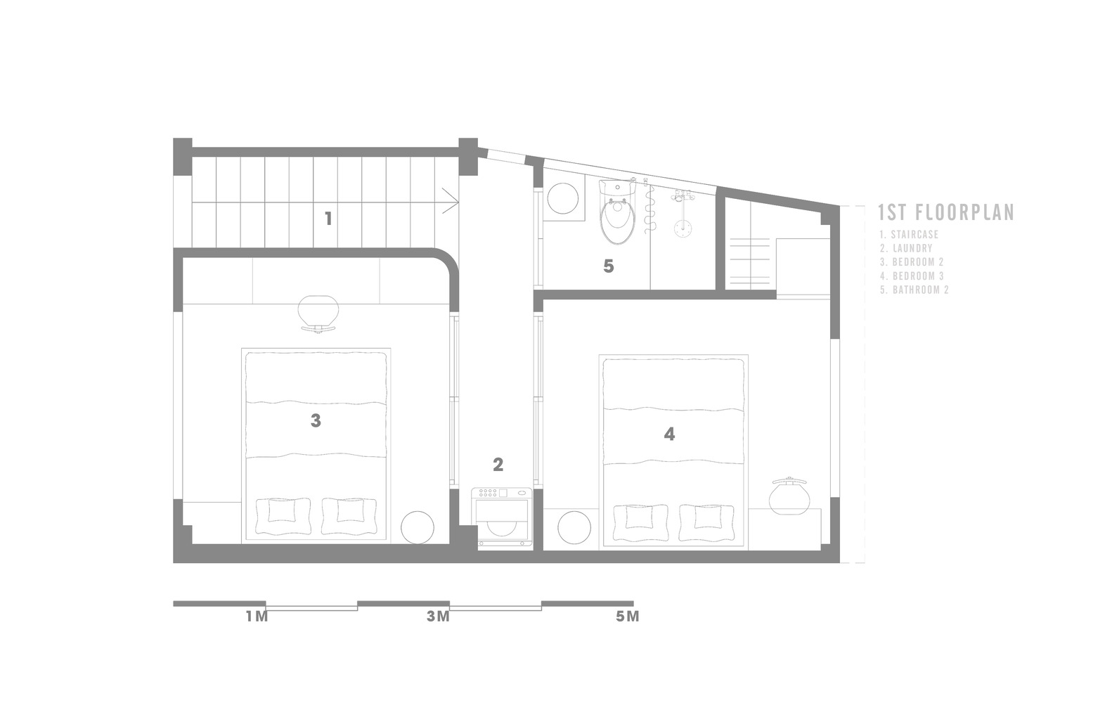
แกรนด์ พลีโน่ รามอินทรา - บางชันสเตชั่น (GRANDE PLENO Ramintra - Bangchan Station) โครงการที่อยู่อาศัยระดับพรีเมียมจาก เอพี ไทยแลนด์ (AP Thailand) นำเสนอรูปแบบการอยู่อาศัยที่มุ่งเน้นการยกระดับคุณภาพชีวิตภายใต้สังคมคุณภาพ โครงการนี้ถูกพัฒนาขึ้นเพื่อเป็นยุทธศาสตร์สำคัญสำหรับผู้บริโภคที่กำลังมองหา "บ้านแฝดรามอินทรา", "บ้านแฝดบางชัน" ตลอดจน "ทาวน์โฮมรามอินทรา" และ "ทาวน์โฮมมีนบุรี" โดยมุ่งตอบสนองกลุ่มครอบครัวคนเมือง (Urban Family) ที่มีความต้องการ "บ้านแฝดมีนบุรี" หรือ "โครงการบ้านใหม่ใกล้รถไฟฟ้า" บนทำเลศักยภาพที่สามารถเชื่อมต่อเข้าสู่ระบบขนส่งมวลชนอย่างรถไฟฟ้าสายสีชมพู และโครงข่ายถนนสายหลักได้อย่างรวดเร็ว พื้นที่ใช้สอยแนวคิดสถาปัตยกรรมยั่งยืน ฟังก์ชันยืดหยุ่นเพื่อการอยู่อาศัยระยะยาว ในด้านการออกแบบพื้นที่ใช้สอย โครงการ แกรนด์ พลีโน่ รามอินทรา - บางชันสเตชั่น มุ่งเน้นการนำเสนอ "บ้านแฝด 2 ชั้น" และทาวน์โฮมหน้ากว้างที่มีพื้นที่ใช้สอยตั้งแต่ 119 - 155 ตารางเมตร โดยบูรณาการแนวคิดสถาปัตยกรรมยั่งยืน (Sustainable Architecture) ผสานกับหลักการ Passive Design อย่างเต็มรูปแบบ เพื่อรับมือกับสภาวะอุณหภูมิที่ปรับตัวสูงขึ้นอย่างมีนัยสำคัญในช่วงเดือนเมษายน 2026 ของประเทศไทย ตัวอาคารได้รับการออกแบบให้สอดคล้องกับทิศทางลมเพื่อส่งเสริมการระบายอากาศตามธรรมชาติ (Natural Ventilation) ควบคู่กับการเลือกใช้วัสดุก่อสร้างและฉนวนกันความร้อนที่ช่วยลดการถ่ายเทอุณหภูมิเข้าสู่ตัวอาคาร ส่งผลให้บ้านเย็นสบายและเพิ่มประสิทธิภาพการประหยัดพลังงาน (Energy Efficiency) ภาพรวมของการจัดสรรพื้นที่ภายใน (Space Allocation) ถูกออกแบบให้มีความยืดหยุ่นสูง (Flexible Space) ในลักษณะ Open Plan เชื่อมต่อพื้นที่ห้องรับแขกและส่วนรับประทานอาหารอย่างต่อเนื่อง เพื่อให้สอดรับกับการใช้งานของผู้อยู่อาศัยทุกเจเนอเรชัน สามารถปรับพื้นที่ชั้นล่างให้เป็นห้องทำงาน (Working Area) หรือห้องอเนกประสงค์ ควบคู่กับการออกแบบห้องนอนมาสเตอร์ (Master Bedroom) ให้มีขนาดใหญ่เทียบเท่าบ้านเดี่ยว การจัดสรรพื้นที่ในลักษณะนี้ช่วยรองรับความต้องการของผู้ที่กำลังค้นหา "บ้านแฝดใกล้รถไฟฟ้า" หรือ "ทาวน์โฮมฟังก์ชันบ้านเดี่ยว" ได้อย่างตรงจุด ครอบคลุมกลุ่มเป้าหมายที่มองหา "ทาวน์โฮมหทัยราษฎร์" และ "ทาวน์โฮมพระยาสุเรนทร์" อย่างครบถ้วน โครงสร้างวิศวกรรมและมาตรฐานความปลอดภัยต้านแผ่นดินไหว โครงการให้ความสำคัญสูงสุดกับมาตรฐานวิศวกรรมการก่อสร้าง โดยโครงสร้างอาคารของ บ้านแฝด AP และทาวน์โฮมทุกยูนิตมีความมั่นคงและได้รับการคำนวณออกแบบตามมาตรฐานวิศวกรรมสากล เพื่อให้สามารถรองรับแรงสั่นสะเทือนจากเหตุแผ่นดินไหวได้อย่างมีประสิทธิภาพ มอบความปลอดภัยขั้นสูงสุดในการพักอาศัยระยะยาว พร้อมบูรณาการระบบบริหารจัดการหมู่บ้านอัจฉริยะ (KATSAN) และระบบรักษาความปลอดภัยภายในตัวบ้านเพื่อยกระดับความมั่นใจตลอด 24 ชั่วโมง ทำเลศักยภาพ ศูนย์กลางการเชื่อมต่อโซนรามอินทรา-บางชัน-มีนบุรี ในด้านทำเลที่ตั้ง แกรนด์ พลีโน่ รามอินทรา - บางชันสเตชั่น ตั้งอยู่บนทำเลศักยภาพภายในซอยรามอินทรา 117 แขวงมีนบุรี ซึ่งเป็นจุดยุทธศาสตร์ด้านการคมนาคมที่สามารถลัดเลาะเชื่อมต่อถนนสายหลักได้อย่างหลากหลาย อาทิ ถนนรามอินทรา, ถนนหทัยราษฎร์, ถนนพระยาสุเรนทร์ และถนนเสรีไทย จุดเด่นด้านการเดินทางคือการเป็น "โครงการบ้านใกล้รถไฟฟ้าสายสีชมพู" (สถานีบางชัน) โดยอยู่ห่างจากสถานีเพียง 2 กิโลเมตร* และใกล้จุดขึ้น-ลงทางด่วนรามอินทรา-อาจณรงค์ ทำให้สามารถเดินทางเข้าสู่ย่านศูนย์กลางธุรกิจ (CBD) ได้อย่างคล่องตัว แวดล้อมด้วยแหล่งไลฟ์สไตล์และโครงสร้างพื้นฐานที่สำคัญ ได้แก่ แฟชั่นไอส์แลนด์ (Fashion Island), เดอะ พรอมานาด (The Promenade), โลตัส มีนบุรี ตลอดจนสถานพยาบาลชั้นนำอย่าง โรงพยาบาลนพรัตนราชธานี และโรงพยาบาลสินแพทย์ ถือเป็นทำเลที่พร้อมรองรับการขยายตัวของเมืองอย่างยั่งยืน